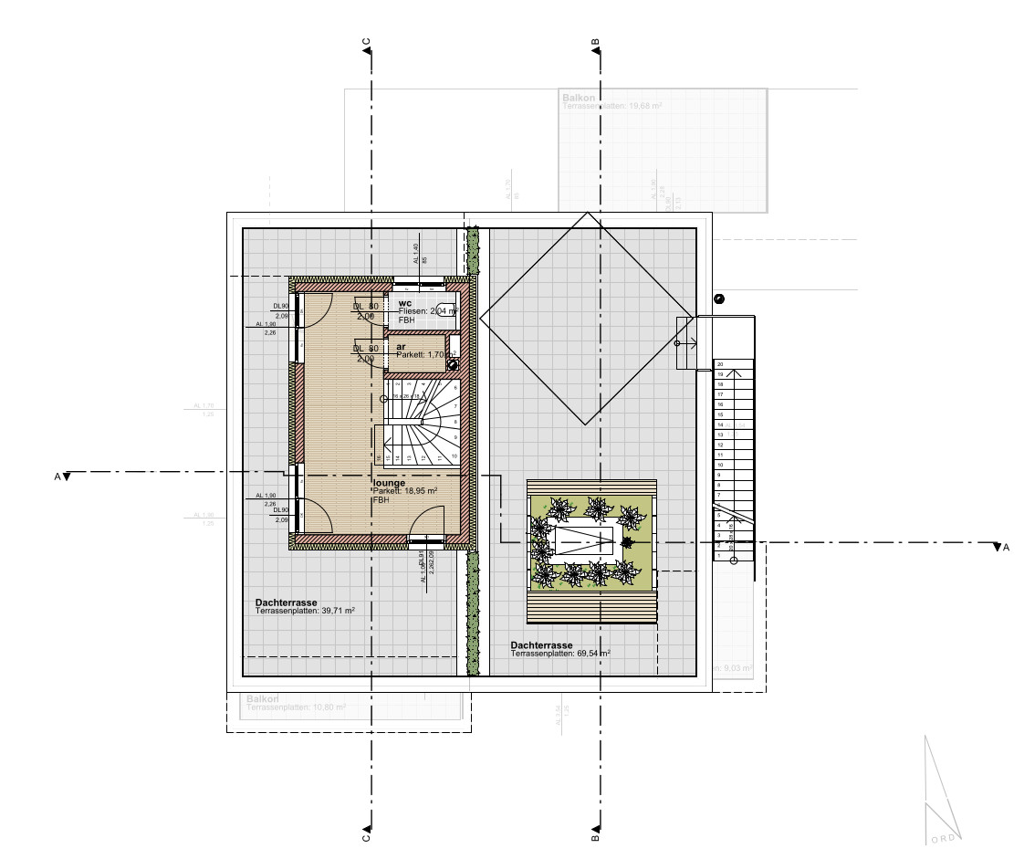
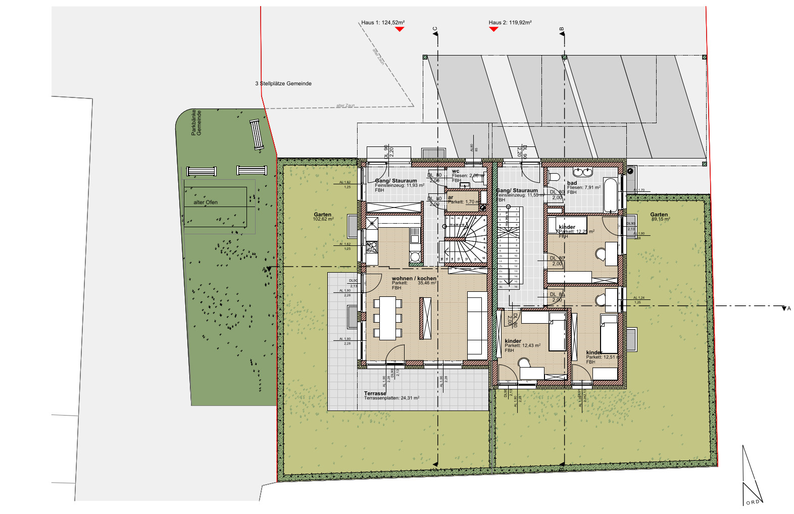
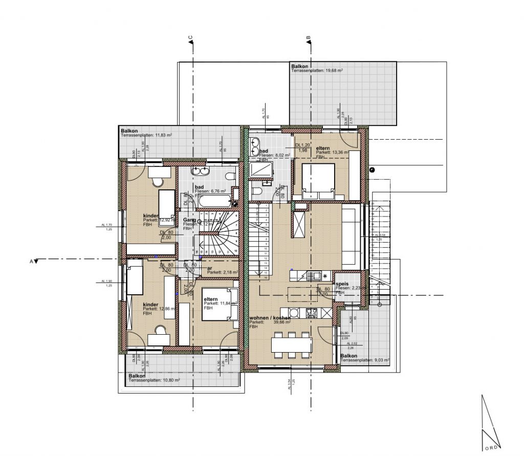
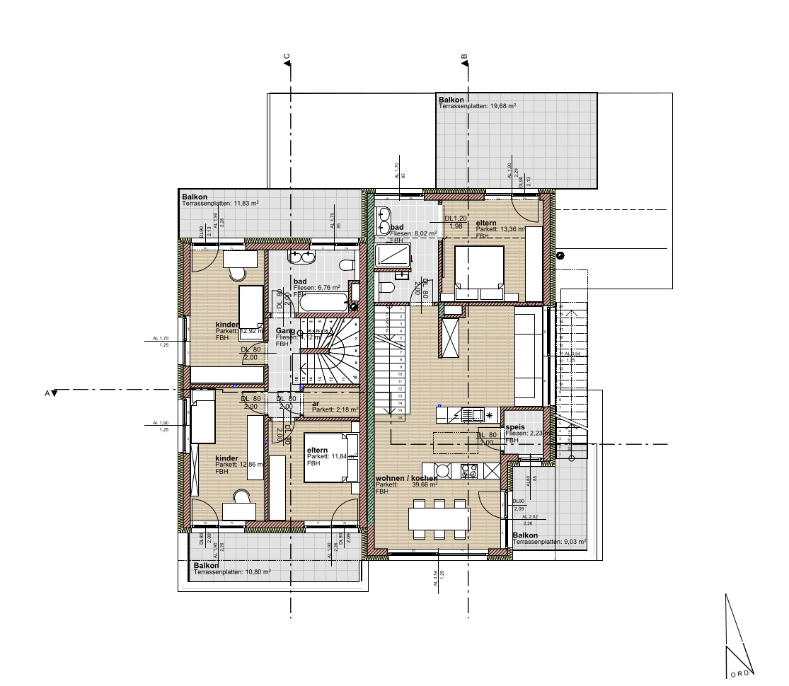
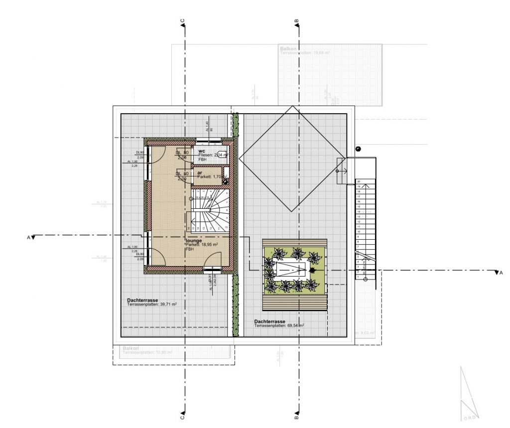
Doppelhaus Natters

Studie Entwurf für Marktanalyse; Aufgabenstellung: 2 Varianten, die der Nachfrage angepasst schnell gespiegelt oder dupliziert und getrennt voneinander behördlich einreichbar (Baumassendichte) sind.